The Weeton - Plot 32

Skelton Lakes, Airedale Walk, Leeds, LS9 0FH

3 bedroom detached home in Leeds

Overview

Property

detached

Bedrooms

3

Bathrooms

2

Garage

None

Discover new homes for sale in Leeds

The Weeton is a three-bedroom home that has all the latest features you could need. With an open plan kitchen and dining area, as well as a lounge, it is the perfect space. Upstairs there are 3 bedrooms with an ensuite bathroom to bedroom one.

Key features

Show home to view

Separate large lounge

Solar pv panels and electric charger included

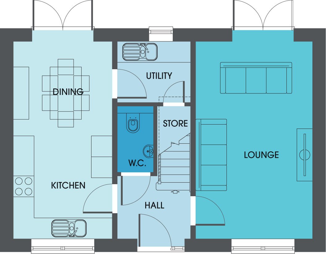
Floorplans

Ground floor
Lounge
5.657m x 3.352m
(18’7” x 11’0”)
Kitchen / Dining / Family
5.657m x 2.840m
(18’7” x 9’4”)
Cloakroom
1.895m x 1.037m
(6’3” x 3’5”)
Utility
1.750m x 2.100m
(5’9” x 6’11”)
First floor
Bedroom 1
3.370m x 3.017m
(11’1” x 9’10”)
Bedroom 1 Ensuite
2.370m x 1.962m
(7’9” x 6’5”)
Bedroom 2
2.205m x 3.352m
(7’3” x 11’0”)
Bedroom 3
3.347m x 2.386m
(10’11” x 7’10”)
Bathroom
2.182m x 3.023m
(7’2” x 9’11”)

Illustrations show a typical house type specification. Details may vary on individual plots, including brick types and roof tiling. The measurements of doors, windows, rooms, and any other items are approximate, and no responsibility is taken for any error, omission, or representation. The floor plans are for illustrative purposes only and should be used as such by any prospective purchaser.

Get in touch
Marketing Suite Open

Thursday to Monday. 10am - 4:30pm

Why buy new?

If you’ve never owned a new home before, then it will be good to know that there are many reasons why buying new is a great choice to make.

An older property or a renovation project can seem appealing, but they often come with huge costs. So here are some reasons why buying new is worth considering instead...

Your new home is built just for you. Nobody has ever lived in your home before, so you’ll be the first to experience it in all its glory.

Buying a new build home has many benefits when it comes to saving energy and money.

New homes are built to the latest energy efficiency standards, meaning you can save thousands on your utility bills. Some recent research by the Home Builders Federation (HBF) has shown that owners of a new build home can save up to £2,200* a year on their energy bills, so this makes them really attractive with energy costs heading upwards in general.

New homes also produce less carbon as they require less energy to heat them up. A new build home is typically 55%* more energy efficient than an upgraded Victorian home and research has found that around 84%* of new homes have an EPC rating of A-B, while only 4%* of existing properties achieved the same rating.

Things like effective insulation and double glazing all help with this, so buying new means you’re protecting the planet and your wallet.

*HBF Watt a Save Report, February 2023.

With a new Evans home, you’ll receive a two-year builder warranty, plus a further eight years Buildmark warranty from the NHBC.

When your new home is being built, the NHBC carry out inspections to ensure that the quality of your home is up to scratch. Then in the unlikely event that something isn’t right in your home, the warranty makes sure that you’re protected and that it’s put right at no additional cost.

With a new home there’s nothing hidden that you didn’t know about when you bought it. You won’t find that you need a full re-wire or that your boiler is faulty, because everything in your home is brand new!

The Home Builder’s Federation has calculated that the cost of bringing a three-bedroom semi-detached home up to the standard of a new build home would typically cost £73,271.80** – so a new home gives a huge saving in both time and money.

** HBF Get on with Living Report, February 2023.

One of the most exciting things about buying a new home is that you have your own blank canvas to make your own and personalise to your tastes. There’s no need to strip wallpaper, take up dusty old carpets or replaster damaged walls – just move in and let your imagination run wild.

Evans Homes can help you with this too! We have a range of stunning kitchens for you to choose from, as well as plenty of options for your new bathroom, bedrooms, tiling, flooring and much more. We work with a number of leading suppliers to offer you a range of options to decide on, so this is always an enjoyable time for you and your family.

Evans Homes can offer a range of schemes to make moving to a new home much easier and less expensive.

There are schemes in place for first time buyers and those moving up to something bigger, so speak to one of our Sales Advisors to find out more.

When you’ve chosen your home, one of the biggest frustrations can be the chains and the endless delays in the buying process.

One of the huge benefits of buying a new home is having no upward chain. This means you’re not waiting for a seller to find a home and move, before you can get going – so it’s a much more straightforward process all round.

The Evans Homes team is here to keep you posted throughout the whole process. From the on-site Sales Advisors and Site Managers, through to the Head Office team supporting them, there is always help available if you need it.

If you would like to find out any more about buying a new home, then come along to one of the Evans Homes developments today – we’re here to help you all the way.

Discover Part Exchange and Assisted Move - Help to Get You Moving

We have a range of schemes available on selected plots to help you to get moving sooner than you think!

Part Exchange

Part Exchange your existing property for a new build with Evans Homes offers several advantages, particularly for those seeking a streamlined and stress-free moving experience.

Find out more
Assisted Move

Got a house to sell? Our Assisted Move scheme is designed to take the stress out of selling your current home so you can focus on moving into your new Evans home, saving money along the way.

Find out more

Evans Homes is a Division of the Evans Property Group. All our purchasers will have the re-assurance of 70 years of success in meeting the needs of our customers and the communities we work in across the country.

Get In Touch

Contact Evans Homes for more details about our developments across Yorkshire.

    Contact preferences: